U gebruikt een verouderde internetbrowser.
We raden u aan om de meest recente internetbrowser te installeren voor de beste weergave van deze website.
Een internetbrowser die up to date is, staat ook garant voor veilig surfen.

Aarschotsestraat 108, 1800 Vilvoorde
Huurprijs: € 1.400 /maand

Omschrijving

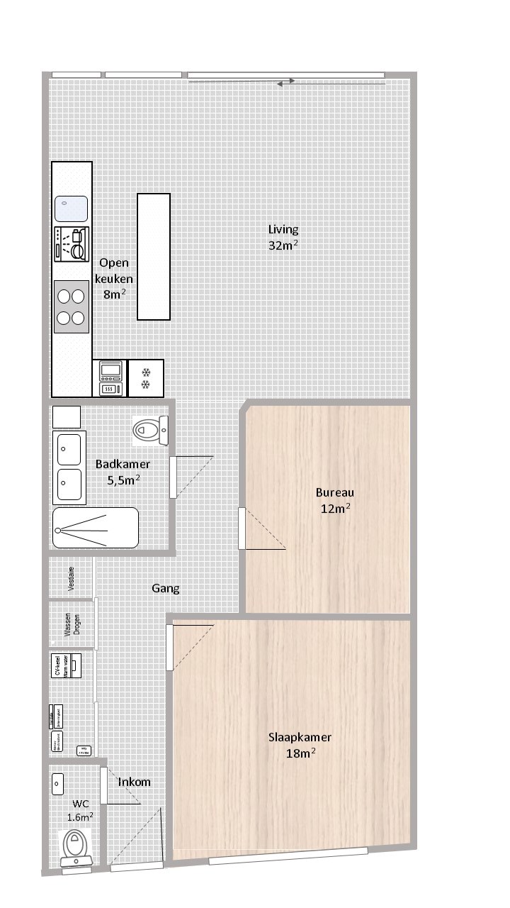
Volledig vernieuwd gelijkvloers huisje met tuin

Deze instapklare, volledig gerenoveerde woning bevindt zich volledig op het gelijkvloers en werd afgewerkt in een strakke, moderne stijl met hedendaags comfort.
De woning beschikt over een inkomhal met apart gastentoilet en is uitgerust met individuele tellers, een vernieuwde tellerkast en een ventilatiesysteem.
Verder omvat de woning twee slaapkamers, waarvan één met een elektrische dakkoepel die zorgt voor extra lichtinval. De badkamer is modern ingericht en voorzien van een inloopdouche, dubbele wastafel en toilet.
De lichtrijke leefruimte met open, volledig geïnstalleerde keuken vormt het hart van de woning en geeft uit op een ruim terras en een verzorgde tuin met tuinberging.
Er is geen garage aanwezig, noch staanplaats. Er zijn geen lasten. Echter, indien de tuin niet naar behoren wordt onderhouden, wordt een bijkomende kost van €100 per maand aangerekend voor het tuinonderhoud.
EPC: Label C. Onmiddellijk beschikbaar.


Kenmerken

Algemeen

Adres:Aarschotsestraat 108
Vilvoorde
Huurprijs:€ 1.400/maand
Type:Woning
Beschikbaar vanaf:Onmiddellijk
Perceeloppervlakte:566 m²
Bewoonbare opp.:102 m²
Type constructie:Traditioneel
Bouwjaar:1967
Op verdieping:0
Algemene staat:Luxe-afwerking

Indeling

Slaapkamers:2 (17.7 m², 12.49 m²)
Badkamers:1
WC:2
Woonkamer:36 m², Woonkamer
Keuken:Ja, Open keuken, Ingericht met toestellen
Terras:40 m²
Tuin:Ja
Tuin oriëntatie:Zuid
Tuin kwaliteit:Verzorgd

Comfort

Raamwerk:Aluminium - gecoate aluminium (Reynaers Aluminium)
Beglazing:Hoogrendementsglas
Elektriciteit:conform
Verwarming:Condensatieketel, Aardgas

Informatieplicht

EPC Certificaat Nr.:20240627-0003293555-RES-1
EPC Index:270,00 kWh/(m² jaar)
Energielabel:C
EPC Geldig tot:27/06/2034
Energie Prestatie Certificaat:Ja
Elektriciteitskeuring:Ja
Overstromingsgevoelig:Mogelijk overstromingsgevoelig gebied
Overstromingsgebied:Geen afgebakende zones
Overstromingskans perceel (P-score):  D
Overstromingskans gebouw (G-score):  D
Erfgoed:Niet meegedeeld

Ligging

360°

Neem vrijblijvend contact op

Heeft u vragen?  Contacteer ons voor bijkomende inlichtingen.
Wenst u een bezoek?  Klik dan op “BEZOEKEN”.


U moet akkoord gaan met het privacybeleid van deze website
* Verplicht in te vullen
Niet gevonden wat u zocht? Schrijf u dan vrijblijvend in op onze nieuwsbrief en blijf op de hoogte van ons recentste aanbod.
Schrijf u in
Terug naar boven
Sluit menu New Immo Wemmel