U gebruikt een verouderde internetbrowser.
We raden u aan om de meest recente internetbrowser te installeren voor de beste weergave van deze website.
Een internetbrowser die up to date is, staat ook garant voor veilig surfen.

Helaas, dit pand is verkocht

1780 Wemmel

Verkocht

Omschrijving

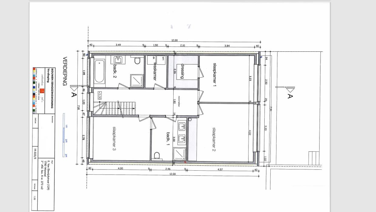
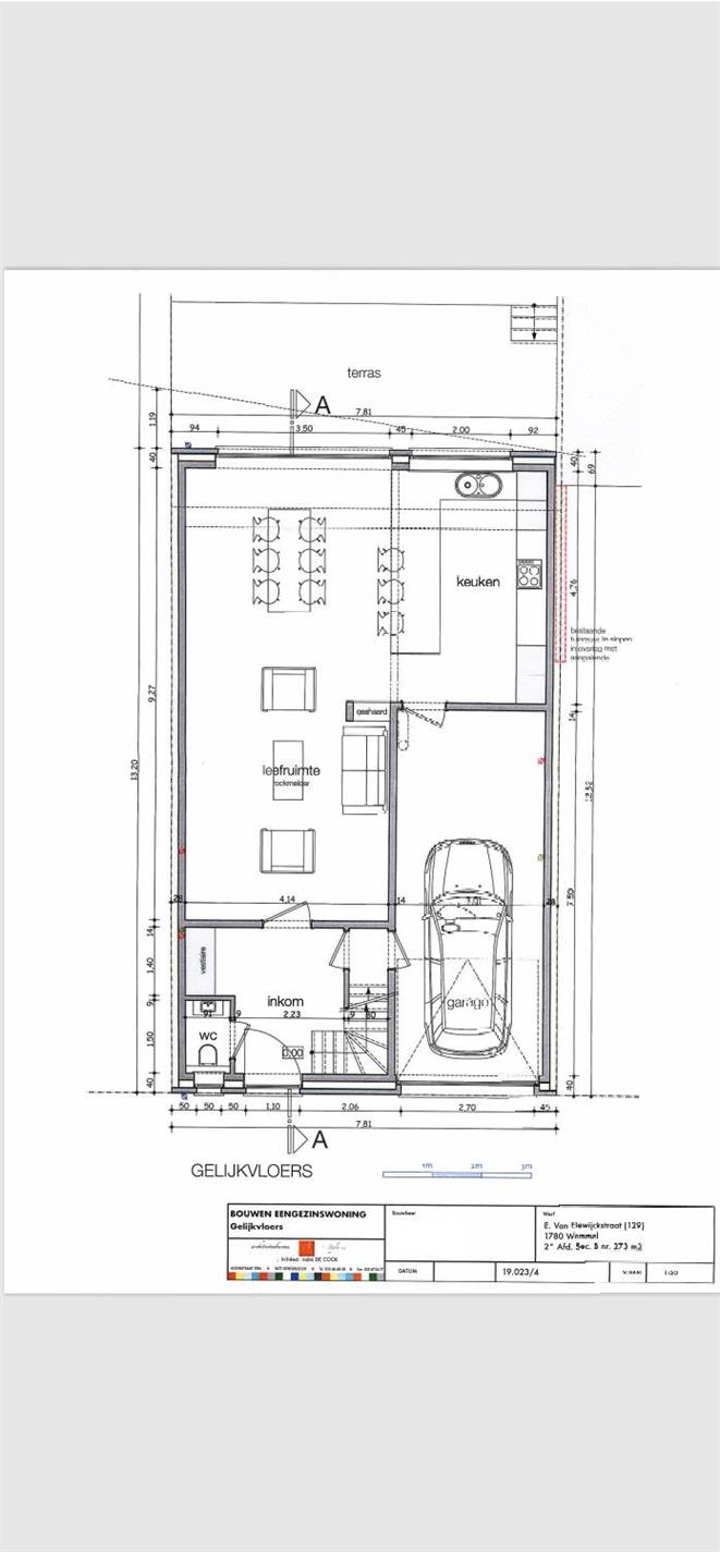
Rustig gelegen perceel grond 1a 73ca.

Rustig gelegen perceel grond met een grondopp. van 1a 73ca, een gevelbreedte van 7,81m en een diepte van 22,50m. Zuidelijke orientatie. Stedenbouwkundige voorschriften: gesloten éénsgezinswoning met 15m diepte op gelijkvloers en 12m op het verdiep en er moet min. 8m diepte tuin zijn. Er werden reeds plannen opgemaakt door een architect die voldoen aan de stedenbouwkundige voorschriften (zie foto's). Niet gelegen in een overstromingsgevoelig gebied.


Niet gevonden wat u zocht? Schrijf u dan vrijblijvend in op onze nieuwsbrief en blijf op de hoogte van ons recentste aanbod.
Schrijf u in
Terug naar boven
Sluit menu New Immo Wemmel